JGSPS-3PAW-800-0480-F
全砖尺寸800W、三相115Vrms,L-N输入、隔离功率因数校正模块
![]() | 产品特性
i: -40 ~ 85℃ e: -40 ~ 100℃ s/m: -55 ~ 100℃ |
性能规格(at TA=+25℃)
| 型号 | 输入范围(Vrms, L-N) | 输出功率(W) | 输出 | ||
| 设定点(V) | 效率(%) | 调整率(%) | |||
| JGSPS-3PAW-800-0480-F | 85~140 | 800 | 48 | 92.5 | ±1 |
产品命名规则

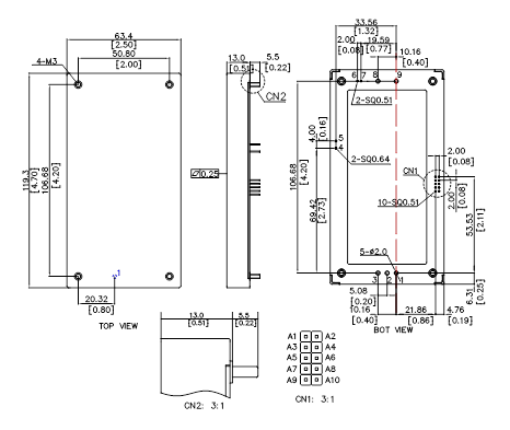
封装尺寸 引脚定义
| 单位: 毫米[英寸] 精度: x.x ±0.5mm[0.02in], x.xx ±0.25mm[0.01in], 除非特别注明。
| 引脚 | 名称 | 功能描述 |
| 1 | Line A | A 相输入 | |
| 2 | Line B | B 相输入 | |
| 3 | Line C | C 相输入 | |
| 4 | VBUS+ | MIDBUS输出正(备注2) | |
| 5 | VBUS- | MIDBUS输出负(备注2) | |
| 6 | Ishare+ | 并联均流脚(备注3) | |
| 7 | Ishare- | 并联均流脚(备注3) | |
| 8 | VOUT- | 输出电压负 | |
| 9 | VOUT+ | 输出电压正 | |
| A1 | START SYNC | 同步启机 | |
| A2 | CTL GND | 控制信号地 | |
| A3 | RX | 异步收发器接收 | |
| A4 | TX | 异步收发器发送 | |
| A5 | AC OK | 交流输入正常 | |
| A6 | DC OK | 直流输出正常 | |
| A7 | PFC EN | 输出使能 | |
| A8 | PD | 保护功能屏蔽 | |
| A9 | AUX+ | 辅助源+3.3V输出,参考CTL_RTN | |
| A10 | \ | \ |
备注2:引脚4,引脚5为PFC中间母线电压,稳态电压约为210V。
备注3:均流时将不同模块的引脚6, 引脚7以及A1,A2分别连在一起。不做均流时,将引脚6、引脚7以及A1悬空。